
Nevienam nebūs jaunums, ka virtuve ir svarīgs, vissvarīgākais elements mājā. Mājas celtniecība nav tik vienkārša un lēta lieta, un vēl jo mazāk tik ātra. Tie cilvēki, kas būvē mājas saviem spēkiem, nevar iegādāties gatavu māju vai pasūtīt būvniecību pēc atslēgas principa, cenšas ekonomiski sadalīt materiālus, izvērtē visus plusus un mīnusus, pastāvīgi meklē saprātīgus un pieņemamus risinājumus, meklē pieejamus un lētus būvmateriālus, strādniekus, kas jūs neapkrāps, nemaldinās, bet darbu paveiks efektīvi un lēti. Šajā rakstā detalizēti pastāstīsiet, kā atrast, sagatavot un apstrādāt materiālu, veikt telpas mērījumus nākotnes virtuvei, pareizi sastādīt darba dokumentāciju un uzstādīt virtuvi ar savām rokām.

Saturs
Materiāla izvēle

Mājas celtniecības laikā ir nepieciešami daudzi un dažādi materiāli. Tas tiek iegādāts izmēros, kas nepieciešami noteiktu veidu darbu veikšanai, un pamatojoties uz būvniecības komandas (vai viņu pašu) aprēķiniem. Taču ne vienmēr ir iespējams perfekti aprēķināt daudzumu ar minimālo nepieciešamo materiāla daudzumu. Tāpat, ja darbā ir kāds defekts vai plāns tiek pārskatīts uz leju (atkarībā no dažādiem apstākļiem), ir nepieciešams iegādāties trūkstošo materiāla daudzumu vai, gluži pretēji, uzglabāt to nākotnes plāniem.
Trūkuma gadījumā rodas problemātiska parādība, kas izpaužas kā neiespējamība izvēlēties vienādu krāsu vai konfigurāciju, izmērus utt. pēc krāsas vai partijas numura. Tāpat, ja ir pārpalikumi, būs nepieciešama papildu uzglabāšanas vieta, kas nākotnē var radīt nekārtību mājā un pastāvīgu būvmateriālu vilkšanu no vienas vietas uz otru.
Pārpalikums noderēs tālākai būvniecībai. Kā rāmi vai aizmugurējo sienu skapjiem var izmantot dēļu, saplākšņa, skaidu plātnes vai kokšķiedru plātnes atgriezumus. Galda virsmai jāizmanto bieza laminēta skaidu plātne (vairāk nekā 30 mm), kas īpaši piesūcināta ar savienojumiem, lai novērstu mitruma absorbciju. Sienas skapīšus var izgatavot no skaidu plātnes, smalkas skaidu plātnes vai masīvkoka. Visi uzskaitītie materiāli tiek pārdoti daudzos veikalos. Skapīšu sānu sienām jāiegādājas 16 mm laminētas loksnes (atkarībā no skapīšu skaita). Vispirms ir vērts uzzīmēt skici.

Skice

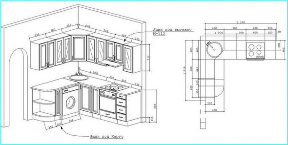
Lai izstrādātu darba projektu (skici), veiciet virtuves zonas mērījumus.
Svarīgi! Sienu garums un platums jāmēra gar klona robežu ar sienu, sienas vidū un augšpusē krustojumā ar griestiem. Tas ir nepieciešams, lai izvēlētos minimālās virtuves iekārtas garuma vērtības, jo nav pilnīgi līdzenu telpu.

Lai noteiktu atrašanās vietu, iepriekš jāizveido aptuvens dabiskā izmēra virtuves elementu rasējums, proti, sadzīves tehnikas un izlietnes izvietojums:
- rozetes;
- gāzes padeves caurules;
- ūdensapgādes un kanalizācijas caurules;
- kapuces.
Tāpat pirms galīgās skices jums vajadzētu uzzīmēt vairākas darba iespējas ar dažādiem izmēriem un virtuves mēbeļu izkārtojuma veidiem.

Galvenie virtuves mēbeļu izkārtojuma veidi
- Virtuves mēbeļu L veida izkārtojums (stūris). Visizplatītākais elementu izvietojums virtuvē. Apvieno daudzpusību, kompaktumu un funkcionalitāti.
Standarta skapīšu izvietojums stūra virtuvē - Novietots gar vienu sienu. Ekonomisks variants. Piemērots mazām telpām un ietver vissvarīgākos elementus.
Standarta mēbeļu komplekta rasējums nelielai, taisnai virtuvei - Virtuves mēbeļu apļveida vai U veida izvietojums.
Apļveida mēbeļu un ierīču izvietojums nelielā virtuvē - Virtuves mēbeļu salas izkārtojums. Noņemot vienu vai vairākas darba zonas no galvenā komplekta. Piemērots lielām platībām. “Salas” daļa ideālā gadījumā ir veidota no vairākām darba zonām, kas ir atdalītas viena no otras. Tas rada ērtības un komfortu, kā arī sniedz iespēju īstenot oriģinālus dizaina risinājumus.
Virtuves ar salām ir pieejamas dažādās formās un izmēros. - Virtuves mēbeļu pussalas izkārtojums. Virtuves iekārtas un bāra letes stūra izvietojuma iespēja ar leti vienā galā; Ir ērti organizēt bāru ar leti tuvāk ejai uz mājas galveno istabu. Tas rada papildu komfortu, uzņemot viesus. Cilvēki var stāvēt aiz letes un netraucēt darba zonai.
Pussalas virtuves izkārtojums ir iespējams atdalīt gatavošanas zonu no ēdamistabas zonas diezgan lielā virtuvē.
Pēc telpas izmēru pārsūtīšanas ar pieslēguma punktiem enerģijas avotiem uz papīra lapas, dodieties tieši uz visu darba zonu un mēbeļu izvietošanu. Ieteicamais mērogs: 1:10.

Prasības mēbeļu izvietojuma drošībai un ērtībai, plānojot virtuvi

Pastāv nerakstīts noteikums par virtuves un mēbeļu galveno darba zonu izvietošanu. Pēdējie ietver:
- pārtikas uzglabāšanas vieta (ledusskapis);
- galvenā zona (plīts ar tvaika nosūcēju un zona produktu mehāniskai vai manuālai griešanai);
- sanitārā zona (izlietne ar atvilktnēm tīru trauku glabāšanai un atkritumu grozs).
Kopā tas rada trīsstūri, kura malām ideālā gadījumā vajadzētu būt vienāda izmēra. Šis nav fragments no Pitagora teorēmas, bet gan reāla situācija. Lai darba organizācija virtuvē būtu atbilstošā līmenī, šīs zonas tiek novietotas vienādā attālumā viena no otras.


Empīriski ir noteikti standarti attiecībā uz elektrisko ierīču un gāzes plīšu drošu izvietošanu.
- Gāzes plīts jānovieto ne tuvāk kā 0,5 metru attālumā no ledusskapja un 0,3 metru attālumā no logiem, sienām un izlietnes.
Ieteicamie attālumi no gāzes plīts virsmas līdz mēbelēm - Elektrības kontaktligzdas atrodas ne tuvāk kā 0,5 metru attālumā no izlietnes, ņemot vērā rokas elektrisko ierīču ērtu lietošanu (lai vads nesaskartos ar ūdeni un citām ierīcēm).
Elektrības kontaktligzdu atrašanās vieta virtuvē Tāpat nenovietojiet mehānisko griešanas zonu logu tuvumā, lai aizkars netiktu ieķerts ierīču griešanas daļās.
Minimālā atstarpe gāzes vai elektriskās plīts un izlietnes uzstādīšanai - Cepeškrāsns un plīts uzstādīšanai ir īpašas prasības. Nekādā gadījumā nedrīkst uzstādīt izvelkamas atvilktnes zem plīts virsmas, jo mazi bērni var ieinteresēties par to, kas notiek uz plīts virsmas, un iebāzt tur rokas. Labāk ir uzstādīt cepeškrāsni krūšu līmenī, tas ir, uz darba virsmas vienā virtuves galā. Tas arī novērsīs nevēlamu saskari starp maziem bērniem un karstām virsmām.
Atkarīgās un neatkarīgās plīts uzstādīšanas shēma
Virtuves skapīšu dizains

Sienas un pamatnes skapīšu izvietojumam virtuves mēbelēs jāpievērš primāra uzmanība, jo tie tiks izmantoti vairākas reizes dienā, un neērta atrašanās vieta var radīt grūtības ēdiena gatavošanā un sliktu garastāvokli.
Pievērsiet uzmanību skapīšu durvīm, lai tās, atverot, nesaskartos ar citām durvīm, ledusskapi vai atvilktnēm. Ja ārējais virtuves skapītis atrodas pret sienu, tas ir jāatdala ar viltus paneli (lai durvis neatrastos pret sienu).

Stūra virtuves projektēšanai ir vairākas priekšrocības salīdzinājumā ar citiem veidiem, proti:
- ļauj palielināt galda virsmas darba vietu;
- stūra skapjiem ir liela ietilpība, kas ļauj tajos ievietot sarežģītas konstrukcijas (karuseļa un izvelkamo plauktu veidus; liela vieta zem izlietnes ļauj tur ievietot podus, katlus utt., līdz pat trauku mazgājamās mašīnas uzstādīšanai);
- Ir iespējams uzstādīt izlietni, kas ir platāka un dziļāka.

Virtuves skapja izmēri

Galda virsmas augstums ir 0,85–0,9 metri (atkarībā no lietotāja auguma).
- Attiecīgi apakšējo atvilktņu augstums būs atkarīgs no galda virsmas augstuma mīnus 10 centimetri.
- Apakšējo un augšējo atvilktņu platums: dubultā atvilktne no 0,7 līdz 0,9 metriem; viens - no 0,2 līdz 0,55 metriem (atkarībā no mērķa).
- Attālums no galda virsmas augšējās malas līdz sienas skapīšu apakšējai malai ir no 0,5 līdz 0,6 metriem.
- Sienas kastu augstums ir no 0,5 līdz 1 metram.
- Tvaika nosūcēja uzstādīšana virs plīts virsmas ir atkarīga no plīts veida. Gāzes plītij – 0,85 metri; elektriskajai plītij – 0,75 metri.
- Ja ir iebūvēta cepeškrāsns skapis, attālumam no plīts malas līdz šim skapim jābūt ne mazākam par 35 centimetriem.
Šie izmēri ir atkarīgi no virtuves ražotāja izvēles, pareizas būvmateriāla griešanas, virtuves telpas izmēriem un virtuves dizaina veida izvēles.










